€
EUR
Quem Somos
Imóveis
Quer Vender
Contactos
Mais
Quem Somos
Imóveis
Quer Vender
Contactos
0
0
Terreno Para Construção
Beja, Ourique
Voltar
\
Terreno Para Construção - Beja, Ourique
Partilhar Imóvel
Facebook
X
Pinterest
WhatsApp
Copiar link
Link copiado
Imprimir ficha
Enviar imóvel a amigo
Insira um Nome
Insira um Email
Insira um endereço de email válido
Insira um Nome
Insira um Email
Insira um endereço de email válido
Li na totalidade e concordo com os termos e condições apresentados.
Saber mais »
Para poder concluir esta operação deve ler e concordar com as nossas condições
Campos obrigatórios *
Enviar
Fotos
Seguir imóvel
Seguir imóvel
Receba um alerta quando existir uma Baixa de Preço
Nome
Insira o seu Nome
E-mail
Insira o seu email
Insira um endereço de email válido
Li e aceito a
Política de Privacidade
Para poder concluir esta operação deve ler e concordar com as nossas condições
Insira o código da imagem
Código
Enviar
Terreno Para Construção, Beja, Ourique
46 000 €
Ref:
025/23
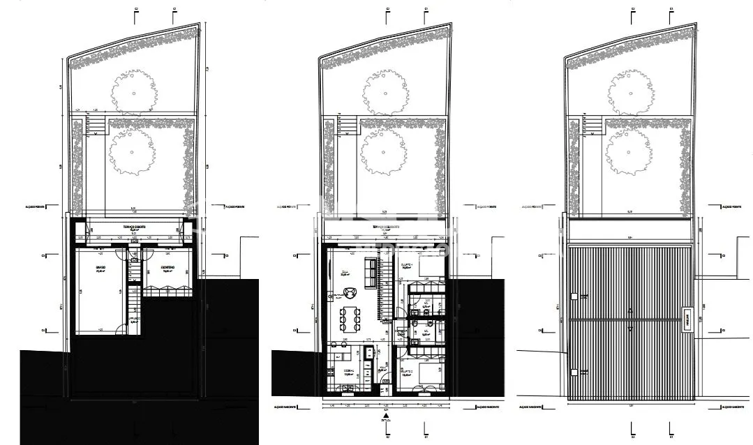
Terreno urbano com projeto de construção já aprovado.
Localizado dentro da vila de Ourique com uma fantástica vista desafogada sobre a paisagem alentejana, onde é possível observar o magnifico pôr-do-sol.
O projeto da casa contempla uma cave, escritório e ginásio.
No rés-do-chão a cozinha e sala em "openspace", 2 quartos e 2 casas de banho (uma delas ensuite).
A casa foi desenhada de forma a maximizar a exposição solar, com janelas de grandes dimensões em ambos os pisos, tem terraço superior, inferior e quintal.
Casa com frente tipicamente alentejana e parte traseira moderna.
Ourique é uma vila Alentejana que fica a cerca de 1h do Algarve e Costa Alentejana e a 2h de Lisboa, com excelentes acessos (A2 e IC1) e algumas opções de transporte.
Se tiver curiosidade de vir conhecer esta excelente oportunidade, entre em contacto.
278,1 m² Área Útil
278,1 m² Área Terreno
Tipo de imóvel
Terreno Para Construção
Tipologia
0 Quartos
Objetivo
Venda
Estado
Usado
Preço
46 000 €
Ano Construção
N/D
País
Portugal
Distrito
Beja
Concelho
Ourique
Freguesia
Ourique
Zona
N/D
Interessado no Imóvel?
Data
Hora
Nome
Insira um Nome
E-mail
Insira um Email
Insira um endereço de email válido
Contacto
Insira o seu contacto telefónico
Mensagem
Solicito mais informações, sem qualquer compromisso, sobre o imóvel 025/23
Li na totalidade e concordo com os termos e condições apresentados.
Política de Privacidade
Para poder concluir esta operação deve ler e concordar com as nossas condições
Código
Insira o código apresentado na imagem
Enviar
Características Gerais
Gerais
Divisões
Divisões
Área
Pavimento
Paredes
Tectos
Observações
Meio Envolvente
Facilidades
Domótica
Energias Renováveis
Veja também
Vendido
Beja, Ourique
50 000 €
Prédio Rústico em Garvão
50 000 €
Prédio Rústico em Garvão
Beja, Ourique
72500 m²
A. Terreno
Contactar
Vendido
Beja, Ourique
30 000 €
Terreno Rústico
30 000 €
Terreno Rústico
Beja, Ourique
11000 m²
A. Terreno
Contactar
Beja, Ourique
65 000 €
Terreno Rústico
65 000 €
Terreno Rústico
Beja, Ourique
67200 m²
A. Terreno
Contactar
Mais imóveis +
Estamos disponíveis para o ajudar
Pretendo ser contactado
Data
Hora
Nome
Insira um Nome
E-mail
Insira um Email
Insira um endereço de email válido
Contacto
Insira o seu Contacto
Mensagem
Li e aceito a
Política de Privacidade
Para poder concluir esta operação deve ler e concordar com as nossas condições
Código
Insira o código apresentado na imagem
Enviar
O que é a pesquisa responsável
Esta pesquisa permite obter resultados mais ajustados à sua disponibilidade financeira.